KEYSTONE ISLANDS | Waterfront Boater’s Dream Home with 115FT of Water Frontage - Miami Luxury Homes
imc
img
BY Michael Light / On September 15, 2025

Michael Light and Ian Gelerman of The Light Group are delighted to present their newest listing at 12910 Auralia Road, a beautiful waterfront home in the guard-gated community of Keystone Islands in North Miami. Priced at $3,295,000, this updated 3-bedroom, 2-bathroom home embodies the South Florida boating lifestyle with over 115 feet of direct water frontage with 2 private docks and no fixed bridges to Biscayne Bay. Also, it offers the most amount of water frontage under $3.5M in the entire community!

Set on a 10,161-square-foot lot, this home was designed with boaters and outdoor enthusiasts in mind. The property features 2 private docks, allowing ample space for 2 boats, ensuring you can set sail with ease. After a day on the water, retreat to your private backyard oasis complete with an expansive covered patio, summer kitchen, living/dining area and heated salt-water pool, perfect for entertaining family and friends.


12910 Auralia Road - Expansive Covered Patio

12910 Auralia Road – Expansive Covered Patio

12910 Auralia Road - Pool Deck

12910 Auralia Road – Pool Deck

12910 Auralia Road - Patio to Pool Flow Through

12910 Auralia Road – Patio to Pool Flow Through

12910 Auralia Road - Eat-In Summer Kitchen

12910 Auralia Road – Eat-In Summer Kitchen


Mid-Century Interior with Modern Comfort – Offering 3,586 total square footage, the home blends timeless charm with modern upgrades. The heart of the home is the oversized chef’s kitchen featuring a cooking island, premium appliances and custom cabinetry. The open-concept living and dining areas are filled with natural light, while a family room and converted garage acting as an office provides flexible space to suit your lifestyle.


12910 Auralia Road - Living Room to Kitchen Flow Through

12910 Auralia Road – Living Room to Kitchen Flow Through

12910 Auralia Road - Kitchen

12910 Auralia Road – Kitchen

12910 Auralia Road - Kitchen

12910 Auralia Road – Kitchen

12910 Auralia Road - Primary Bedroom View

12910 Auralia Road – Primary Bedroom View

12910 Auralia Road - 2-Car Garage with A/C Converted into an Office

12910 Auralia Road – 2-Car Garage with A/C Converted into an Office


Additional Features

  • Impact-resistant windows and doors throughout
  • Outdoor dining and lounge areas with beautiful water views
  • Ample storage and an air-conditioned two-car garage
  • Spacious primary suite with serene garden and pool views
  • Wonderful location just minutes from Bal Harbour Shops, Aventura Mall, Sunny Isles Beach and Miami Beach, residents enjoy both tranquility and convenience.

Overview

• Address: 12910 Auralia Road, North Miami, FL 33181
• Price: $3,295,000
• Bedrooms/Bathrooms: 3 Bedrooms / 2 Bathrooms
• Living Area: 2,569 Sq. Ft. (3,586 Total)
• Lot Size: 10,161 Sq. Ft.


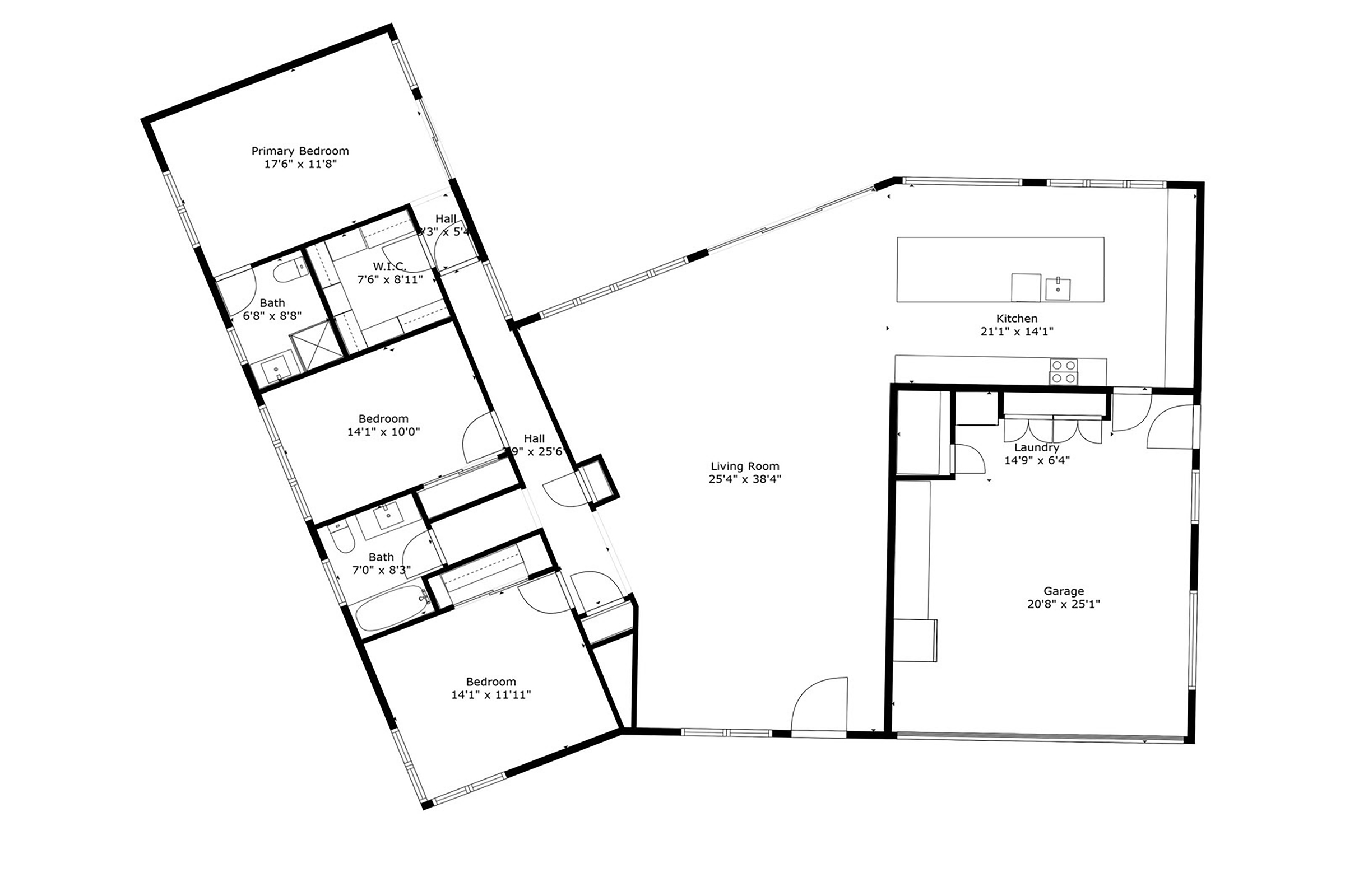
12910 Auralia Road - Floor Plan

12910 Auralia Road – Floor Plan

12910 Auralia Road - Aerial View

12910 Auralia Road – Aerial View


If you are interested in a private viewing of 12910 Auralia Road in Keystone Islands, please contact listing broker, Michael Light, Executive Director of Luxury Sales at Douglas Elliman Real Estate or Sales Associate, Ian Gelerman. You may reach Michael directly at 786.566.1700 or michael@miamiluxuryhomes.com or Ian directly at 305.432.6630 or ian@miamiluxuryhomes.com.

 

img

Learn more about The Light Group

Learn More

NEWSLETTER

Get access to our exclusive weekly "Insider" newsletter on everything Miami!

5,000+ Subscribers follow the Miami Luxury Homes Blog and are the first to learn about new listings, open houses, exclusive properties, market reports and more!

The Miami Luxury Homes A-List

Join 5,000+ current subscribers and sign up to receive our weekly newsletter!

We will NEVER share your information

Explore Miami & Miami Beach Communities